Угловая промежуточная опора ЛЭП УП16.4-1 (типовой проект 3.407.1-143.4.4)

Арт.: up16.4-1_3.407.1-143.4
Под заказ
от
199012
р.
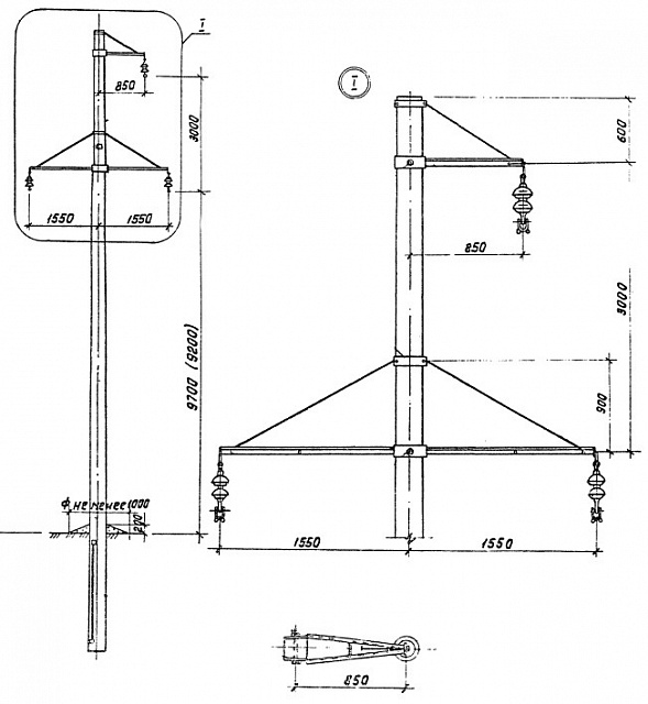
Угловая промежуточная опора П16.4-1 предназначена для надёжного удержания проводов на поворотах ВЛ 10 кВ, компенсации повышенных нагрузок и сохранения стабильности линии в сложных условиях.
  • Описание
  • Характеристики
  • Преимущества

Опора ВЛ УП16.4-1 предназначена для применения в I-IV ветровых и гололёдных районах и I-III районах по пляске проводов для электроснабжения животноводческих комплексов и птицефабрик от ВЛ 10 кВ.

На опоре предусматривается подвеска сталеалюминиевых проводов ВЛ АС 70/11 и АС 95/11, а также проводов марок АпС, АСКС, АСКП и АСК того же сечения по ГОСТ 839-80.

Стоимость опоры УП16.4-1 сильно зависит от количества опор в заказе, места доставки опор, применяемых комплектующих и типа применяемого антикоррозийного покрытия. Поэтому актуальная стоимость каждой опоры подлежит обязательному уточнению с учётом ваших конкретных условий поставки!


Состав опоры УП16.4-1:

- Стойка СВ164-12

- Плита П-3и

- Анкер АЦ-1

- Траверса ТМ-18

- Оттяжка ОТ-4

- Оттяжка ОТ-5

- Болт Б-1

- Хомут Х-33

- Хомут Х-34

- Хомут Х-35

- Проводник ЗП-1

- Зажим ПС3 ГОСТ4261-82

- Подвеска поддерживающая изолирующая II

Производитель
ООО "ЮШЕ-Электро"
Технические условия
ТУ 23.61.12-002-87381870-2021
Страна производства
Российская Федерация
Гарантия
12 месяцев
Статус
Под заказ
Типовой проект
3.407.1-143.4
Высота опоры ЛЭП (над землёй), м.
13,4
Глубина котлована, м.
3,0
Тип опоры
Угловая промежуточная

✅ Оперативный расчёт большинства популярных опор ЛЭП;

✅ Комплектация опор в соответствии с типовыми проектами, которые разрабатывались в СССР целыми конструкторскими бюро и институтами электроэнергетики;

✅ Предоставление технического паспорта на каждую марку изготовленных нами опор ЛЭП;

✅ Предоставление сертификата соответствия на опору ЛЭП в полном комплекте (то есть на всё изделие в целом), что позволит проще и быстрее произвести сдачу линии электропередачи заказчику и контролирующим организациям.

Популярные товары

Менеджер
Елизавета
Секретарь-референт
Консультация специалиста
Мы обязательно свяжемся с вами!
Менеджер
Елизавета
Секретарь-референт
Оставить заявку
Мы обязательно свяжемся с вами!
Менеджер
Елизавета
Секретарь-референт
Заказать расчет
Мы обязательно свяжемся с вами!